direct naar inhoud van Toelichting
Plan: Beetsterzwaag - Commissieweg 2 t/m 5
Status: voorontwerp
Plantype: bestemmingsplan
IMRO-idn: NL.IMRO.0086.02BPCommissieweg2-0101

Toelichting

Hoofdstuk 1 Inleiding

1.1 Aanleiding

Verpleeghuis Ikenhiem ligt in een prachtige groene omgeving aan de rand van Beetsterzwaag. De locatie bevindt zich aan de Commissieweg. Ikenhiem biedt verpleging en verzorging voor somatische cliënten en mensen met dementie. Daarnaast verblijven er jongere verpleeghuiscliënten met niet-aangeboren hersenletsel (NAH). Ikenhiem in Beetsterzwaag is een van de locatie van de Stichting ZuidOostZorg. De huidige huisvesting is ooit neergezet als tijdelijke huisvesting en is verouderd. Het voornemen is om op de Commissieweg 3 de nieuwbouw ten behoeve van het verpleegtehuis te realiseren, om vervolgens het bestaande pand op Commissieweg 5 te slopen.

Onderstaande figuren geven respectievelijk de huidige situatie en de toekomstige situatie weer. Het bestaande pand (Commissieweg 5, locatie C in de figuur 'huidige situatie) wordt gesloopt. De vervangende nieuwbouw wordt gerealiseerd op Commissieweg 3, dit is locatie B in de figuur 'Ontwikkelingsperspectief', dus direct ten noorden van de bestaande locatie. Binnen het plangebied bevindt zich een vleermuizentoren. Deze zal worden gehandhaafd. In paragraaf 3.1 en paragraaf 3.2 wordt uitgebreider ingegaan op de huidige situatie en de voorgenomen ontwikkeling.

afbeelding "i_NL.IMRO.0086.02BPCommissieweg2-0101_0001.jpg"

Figuur: huidige situatie

afbeelding "i_NL.IMRO.0086.02BPCommissieweg2-0101_0002.jpg"

Figuur: ontwikkelingsperspectief

Het nieuwe Ikenhiem zal zorg gaan bieden aan ouderen in een beschutte woonomgeving en met zorg op maat. Het is de wens van ZuidOostZorg om een duurzaam ‘state of the art’ woongebouw te realiseren. Een gebouw dat mee kan bewegen met toekomstige woonwensen en zorgvragen. Het toekomstig aantal wooneenheden van de zorginstelling bedraagt 56, dit is evenveel als in de huidige situatie aanwezig is.

afbeelding "i_NL.IMRO.0086.02BPCommissieweg2-0101_0003.jpg"

Foto: bestaand gebouw Ikenhiem

1.2 Ligging plangebied

Het plangebied voor dit bestemmingsplan is gelegen net ten zuiden van de Hoofdstraat, de doorgaande weg door Beetsterzwaag. Het plangebied grenst aan de oostzijde aan een park, wat oorspronkelijk als overtuin bij Landgoed Lyndensteyn is aangelegd.

afbeelding "i_NL.IMRO.0086.02BPCommissieweg2-0101_0004.jpeg"

Figuur: ligging plangebied

afbeelding "i_NL.IMRO.0086.02BPCommissieweg2-0101_0005.jpeg"

Figuur: begrenzing plangebied

1.3 Vigerende regeling

Op het plangebied is van toepassing de Beheersverordening Beetsterzwaag Gemeente Opsterland (vastgesteld 2013-06-03). Ten aanzien hiervan het volgende.

Ten aanzien van het gebruik, het bouwen en het uitvoeren van werken en werkzaamheden geldt in principe, conform artikel 2 lid a  van de beheersverordening, het voorheen geldende bestemmingsplan Beetsterzwaag - Kom (2000), zoals aangepast bij de Correctieve en Partiële herziening 2004 (2005). Aan het perceel aan de Commissieweg met de bestemming “Uit te werken doeleinden van wonen en dienstverlening” (artikel 6) is echter goedkeuring onthouden door Gedeputeerde Staten vanwege strijdigheid met het toenmalige provinciale beleid (besluit 6 juli 2000, nr. 456542). Door de onthouding van goedkeuring werd destijds de “Herziening plan van uitbreiding in onderdelen voor het dorp Beetsterzwaag” uit 1959 (voor wat betreft de gronden aan de Commissieweg aangepast bij de “9e partiële herziening van het bestemmingsplan voor het dorp Beetsterzwaag” uit 1966) weer vigerend.

Bij de “Correctieve partiële herziening van het bestemmingsplan Beetsterzwaag-Kom” in 2005 is deze situatie in stand gebleven vanwege het feit dat de betrokken gronden op dat moment al in (tijdelijk) in gebruik waren genomen door Lyndenstein.

Dit is bij de vaststelling van de Beheersverordening Beetsterzwaag in 2013 hersteld door het gebied op te nemen in het verordeningsgebied. Omdat ter plaatse geen bestemming geldt, omdat het plan uit 1966 niet in de beheersverordening is meegenomen, is artikel 2 lid d van de beheersverordening van toepassing en is uitsluitend de bestaande (legale) situatie planologisch geregeld. Op het perceel Commissieweg 2 rust een woonbestemming.

afbeelding "i_NL.IMRO.0086.02BPCommissieweg2-0101_0006.png"

Figuur: fragment van Beheersverordening Beetsterzwaag met daarin plangebied Commissieweg (bron: ruimtelijkeplannen.nl)

1.4 Leeswijzer

In hoofdstuk 2 staat een beschrijving van het relevante beleidskader. Hoofdstuk 3 gaat in op de huidige situatie en de planuitgangspunten. De omgevingsaspecten zijn in hoofdstuk 4 opgenomen. In hoofdstuk 5 vindt een toelichting plaats op de juridische regeling. Hoofdstuk 6 tenslotte gaat in op de maatschappelijke en economische uitvoerbaarheid.

Hoofdstuk 2 Beleidskader

2.1 Rijksbeleid

2.1.1 Structuurvisie Infrastructuur en Ruimte

De Structuurvisie Infrastructuur en Ruimte 2040 (SVIR) is op 13 maart 2012 in werking getreden. De structuurvisie geeft een totaalbeeld van het ruimtelijk- en mobiliteitsbeleid op rijksniveau en is de 'kapstok' voor bestaand en nieuw rijksbeleid met ruimtelijke consequenties. Om de bestuurlijke drukte te beperken brengt het Rijk de ruimtelijke ordening zo dicht mogelijk bij burgers en bedrijven, laat het meer over aan gemeenten en provincies en komen de burgers en bedrijven centraal te staan. Het Rijk kiest voor een selectievere inzet van rijksbeleid op nationale belangen dan voorheen. De ontwikkeling in het plangebied raakt geen van de onderscheiden rijksbelangen. De structuurvisie is via regels verankerd in het Besluit algemene regels ruimtelijke ordening. Deze geeft voor het plangebied geen direct bindende regels.

2.1.2 Ladder voor duurzame verstedelijking

Voor de ruimtelijke ontwikkeling van stedelijke functies gaat de SVIR uit van de Ladder voor duurzame verstedelijking. De “Ladder voor duurzame verstedelijking” is vastgelegd in het Besluit ruimtelijke ordening (artikel 3.1.6. lid 2 Bro). Deze ladder is bedoeld om zuinig om te gaan met de beschikbare ruimte, de behoefte goed in beeld te brengen en deze regionaal af te wegen.

Op 1 juli 2017 is een wijziging van het Besluit ruimtelijke ordening in werking getreden

waarbij een nieuwe Laddersystematiek gaat gelden. De ladder bestaat uit de volgende twee treden:

  • a. er wordt beschreven dat de voorgenomen stedelijke ontwikkeling voorziet in een behoefte;
  • b. indien uit de beschrijving, bedoeld in onderdeel a, blijkt dat sprake is van een behoefte, wordt beschreven in hoeverre in die behoefte binnen het bestaand stedelijk gebied kan worden voorzien door benutting van beschikbare gronden door herstructurering, transformatie of anderszins.

De Ladder is van toepassing op nieuwe stedelijke ontwikkelingen. De definitie hiervan is weergegeven in artikel 1.1.1 lid 1 onder i Bro: een ruimtelijke ontwikkeling van een bedrijventerrein of zeehaventerrein, of van kantoren, detailhandel, woningbouwlocaties of andere stedelijke voorzieningen. Onder 'andere stedelijke voorzieningen' vallen sociale en culturele voorzieningen en voorzieningen in het onderwijs.

Ladderonderbouwing

De voorgenomen ontwikkeling voorziet in de vervanging van het bestaande gebouw. De huidige huisvesting is ooit neergezet als tijdelijke huisvesting en is verouderd. De voorgenomen stedelijke ontwikkeling voorziet aldus in een behoefte. Daarnaast maakt het plangebied deel uit van 'Bestaand bebouwd gebied' (Verordening Fryslân).

2.2 Provinciaal beleid

Op 18 juni 2014 hebben Provinciale Staten de Verordening Romte Fryslân 2014 vastgesteld. De verordening stelt regels die ervoor moeten zorgen dat de provinciale ruimtelijke belangen doorwerken in de gemeentelijke ruimtelijke plannen. De verordening voorziet niet in nieuw beleid. Uitsluitend geldend provinciaal ruimtelijk beleid is omgezet in algemeen geldende regels. Het gebied is ingevolge de provinciale verordening als 'bestaand gebouwd gebied' aangegeven. Een ontwikkeling van maatschappelijke functies in een dergelijk gebied is niet in strijd met het provinciale beleid.

2.3 Gemeentelijk beleid

Omgevingsvisie Gemeente Opsterland 2015-2030

In de Omgevingsvisie Gemeente Opsterland 2015-2030, zoals vastgesteld op 21 september 2015, is een analyse gemaakt van de maatschappelijke ontwikkelingen op het wonen en leven in de dorpen van Opsterland. Het gaat daarbij om belangrijke maatschappelijke veranderingen  die  ingrijpende  gevolgen hebben voor de ruimtelijke ontwikkeling, zoals demografische  veranderingen, veranderingen op het gebied  van inkomen, zorg, koopgedrag, participatie, vrijwilligerswerk, vrijetijdsbesteding, alsmede technologische veranderingen,  zoals internet,  social media, domotica, milieu, energiegebruik, landbouw, verkeer, vervoer en transport. Daarnaast  hebben  de  stagnerende  economie,  de krimp en de beperkte gemeentelijke  middelen eveneens  ingrijpende  gevolgen  voor  de samenleving en voor de benodigde voorzieningen.

De Omgevingsvisie vermeld ten aanzien van 'zorg' dat bij de planning van intramurale zorgvoorzieningen (zoals verpleeghuiszorg), nieuwe woon-zorgconcepten, anderhalvelijnszorg en ziekenhuiszorg regionale samenwerking van groot belang is. Afstemming van investeringen tussen zorgaanbieders, onder regie van het zorgkantoor, is een vereiste.

De omgevingsvisie biedt geen concrete aanknopingspunten voor de voorgenomen ontwikkeling.

2.3.1 Welstandsnota Opsterland 2009

In alle gevallen moet een aanvraag voor een omgevingsvergunning, waar het gaat om bouwen, voldoen aan de criteria die zijn opgenomen in de Welstandsnota Opsterland 2009. Het plangebied valt onder het deelgebied 'nieuwbouw seriematig'. Het betreft na-oorlogse woningbouw, seriematig gebouwd. Het beleid is gericht op het beheer van de bestaande situatie. Bijzondere ontwikkelingen worden voor deze gebieden niet verwacht. Voor de gebieden is een regulier ambitieniveau van kracht. De nadruk ligt op het respecteren van de bestaande basiskwaliteit.

afbeelding "i_NL.IMRO.0086.02BPCommissieweg2-0101_0007.jpg"

Figuur: fragment Welstandsnota gemeente Opsterland 2009

De daarbij geldende gebiedscriteria zijn voor dit gebied nader aangevuld met een aantal criteria. Zie verder paragraaf 2.3.2 

2.3.2 Beeldkwaliteit Commissieweg Beetsterzwaag

Het beeldkwaliteitsplan Commissieweg Beetsterzwaag (29 juni 2020) is een specifieke uitwerking bedoelt om de regie te voeren op de kwaliteit van de voorgenomen ontwikkeling aan de Commissieweg, en geldt als toetsingsdocument voor de welstandscommissie. Dit beeldkwaliteitsplan is een zelfstandig document waarin een stedenbouwkundige onderlegger is geïntegreerd. Het beeldkwaliteitsplan geeft richting aan de nieuwbouw plannen op deze locatie. Daarnaast krijgen de parkeervoorzieningen en de ontwikkelingspotentie van de vrijkomende gronden een plek. De samenhang in deze ontwikkelingen is vastgelegd in een stedenbouwkundige onderlegger als raamwerk voor de ontwikkeling. De kaarten verbeelden op welke manier toekomstig programma [bebouwd en onbebouwd] zich verhoudt tot dit raamwerk. De uitgangspunten zijn vastgelegd als leidende principes. Het Beeldkwaliteitsplan Commissieweg Beetsterzwaag is als bijlage 4 opgenomen bij deze toelichting.

Hoofdstuk 3 Huidige situatie en planuitgangspunten

3.1 Huidige situatie

3.1.1 Karakteristiek Beetsterzwaag

Beetsterzwaag ligt in het zuidoosten van Friesland, ten zuiden van de kern Drachten. Het dorp ligt letterlijk op de westelijke rand van de Friese Wouden. Meteen buiten de bebouwde kom is de overgang van hogere zandgronden naar lager gelegen veengebieden. Beetsterzwaag is ontstaan op de noordelijke zandrug, die het stroomdal van de Boorne, hier Koningsdiep genaamd, begeleidt.

Door de ligging bij bos en heide, op slechts enkele kilometers van de stedelijke kern Drachten, en bovendien centraal in het Noorden en aan de A7, is wonen in Beetsterzwaag in trek. Bovendien heeft Beetsterzwaag een uitgebreid pakket aan voorzieningen.

Door de aanwezigheid van de bos- en heidegebieden en de cultuurhistorische aantrekkelijkheid van omliggende landgoederen en voorname huizen vervult Beetsterzwaag ook een belangrijke toeristisch-recreatieve functie voor Noord Nederland. De dagrecreatieve functie is in Beetsterzwaag belangrijk, dit komt naar voren door de aanwezigheid van horeca en galerieën, antiek- en kunstnijverheidswinkels.

Op basis van de ruimtelijke structuur kan het dorp in een aantal deelgebieden worden opgedeeld:

  • het oudste gebied van de Hoofdstraat en omgeving;
  • het zuidelijk woongebied en het complex van locatie 'De Wissel' van Stichting Talant;
  • het noordelijk woongebied en het complex van Revalidatie Friesland.

De Hoofdstraat met aanliggende bebouwing vormt het karakteristieke en unieke hart van Beetsterzwaag. Deze dorpskern wordt als herkenbaar en besloten ervaren en biedt door zijn vele monumenten, karakteristieke panden, tuinen en overtuinen, een karakteristieke én unieke combinatie. Bepalend in het ruimtelijk beeld is ook de scherpe overgang van het open bebouwingslint met landgoederen naar het besloten kerngebied.

De Overtuin

Het plangebied grenst aan de oostzijde aan De Overtuin van Lyndensteyn. De Overtuin is een historisch park. De tuin was oorspronkelijk een in de 18e eeuw aangelegde tuin, die door de tuinarchitect Lucas Pieters Roodbaard na 1832 getransformeerd werd in een Engelse landschapstuin met slingerpaden en een slingerende vijver. In 1978 werd de tuin opnieuw ingericht door de Heidemaatschappij in een geometrische stijl. De tuin eindigt op een kunstmatige heuvel recht tegenover Lyndensteyn. Oorspronkelijk bevond zich hier een zomerhuis. Enkele linden in het park dateren nog uit de periode van de eerste aanleg in de 18e eeuw. De tuin is erkend als rijksmonument.

3.1.2 Karakteristiek plangebied

Het plangebied ligt westelijk binnen de bebouwde kom van Beetsterzwaag en bestaat uit de percelen Commissieweg 2, 3 en 5. Op de percelen bevinden zich een bestaande zorginstelling, evenals twee parkeerfaciliteiten. Tevens bevinden zich binnen het plangebied enkele bosschages rond de zorginstelling en parkeerfaciliteiten. Binnen en vlak langs het plangebied lopen enkele sloten. De omgeving van het plangebied wordt gekenmerkt door de bebouwde kom van Beetsterzwaag, bosrijk gebied en agrarisch gebied doorkruist door houtwallen en sloten.

Direct ten zuiden van het plangebied bevindt zich een bedrijfsverzamelgebouw met enkele kantoren, o.a. van Landschapsbeheer Fryslân. Daar weer ten zuiden van zijn enkele woonappartementen gerealiseerd.

afbeelding "i_NL.IMRO.0086.02BPCommissieweg2-0101_0008.png"

Foto: bedrijfsverzamelgebouw ten zuiden van het plangebied

De naam 'Ikenhiem'

De naam verwijst naar een ikenhiem, een met hoogopgaand eikenhout begroeid perceel naast een boerderij. In Opsterland werd wel na de bouw van een boerderij een zogenaamde ikenhiem aangelegd: een boomweide met zomereiken, waarin het jongvee werd geweid en waaruit op de lange duur nieuw bouwhout kon worden geoogst. Er zijn nog enkele mooie voorbeelden van deze ikenhiemen in stand gebleven, onder meer tussen Gorredijk en Lippenhuizen. Het oorspronkelijk karakter van een met hoogopgaand eikenhout begroeid perceel is nog steeds aanwezig.

Groeninventarisatie

In het kader van de planontwikkeling is een groeninventarisatie uitgevoerd, zie bijlage 1. Met het inrichtingsontwerp is zoveel mogelijk rekening gehouden met de bestaande bomen. Het is echter onvermijdelijk dat er een aantal bomen gekapt moet worden. Op bijgaande figuur is aangegeven welke bomen moeten wijken voor de nieuwbouw en het parkeren. Met het nog te maken ontwerp voor de tuin zal zoveel mogelijk rekening gehouden worden met de bestaande bomen. Voor het kappen van bomen is een kapvergunning noodzakelijk in het kader van de Algemene Plaatselijke Verordening van de gemeente Opsterland (APV). Er wordt gecontroleerd in welke mate er sprake is van kap en of hier een meld- en/of herplantplicht aan de orde kan zijn.

afbeelding "i_NL.IMRO.0086.02BPCommissieweg2-0101_0009.jpg"

Figuur: overzicht van de te kappen bomen (in rood weergegeven) (Bron: VMEZ)

3.2 Voorgenomen ontwikkeling

3.2.1 Stedenbouwkundige onderlegger

Ter voorbereiding op het bestemmingsplan is een zgn 'stedenbouwkundige onderlegger' opgesteld. In de stedenbouwkundige onderlegger is op basis van een ruimtelijk-stedenbouwkundige invalshoek het ontwikkelingsperspectief voor de locatie geschetst. De nieuwbouw voor Ikenhiem wordt ten noorden van de bestaande locatie ontwikkeld. Het bestaande gebouw wordt te zijner tijd gesloopt. De plaats van het bestaande gebouw is op het ontwikkelingsperspectief aangegeven als 'ontwikkelen locatie woningbouw'. Dit wordt voorlopig nog niet verder uitgewerkt.

In de stedenbouwkundige onderlegger worden verder uitgangspunten aangedragen die betrekking hebben op:

  • hoogteopbouw en kapvorm
  • rooilijn en verspringing
  • massa/korrelgrootte
  • entree, oriëntatie van bouwvolume aan de straat dan wel aan het park
  • bebouwingsafstand t.o.v. aangrenzende percelen
  • terreininrichting: parkeren, groen en water, voetpaden.

afbeelding "i_NL.IMRO.0086.02BPCommissieweg2-0101_0010.jpg"

Figuur: Ontwikkelingsperspectief ( Bron: Stedenbouwkundige onderlegger)

afbeelding "i_NL.IMRO.0086.02BPCommissieweg2-0101_0011.jpg"

Figuur: Stedenbouwkundige onderlegger

3.2.2 Schetsontwerp

Op basis van de stedenbouwkundige onderlegger is een schetsontwerp voor het gebouw gemaakt. Dit schetsontwerp is als bijlage 3 bij de toelichting opgenomen. Het schetsontwerp gaat uit van een gebouw, bestaande uit twee woontorens van 4 bouwlagen hoog. De Het gebouw krijgt een plat (sedum)dak. De twee woontorens zijn verbonden door een atrium (1 bouwlaag), waarin zich het merendeel van de centrale voorzieningen bevinden (entree, restaurant, facilitaire ruimtes).

Het parkeren is aan weerszijde van het gebouw voorzien. Aan de voorzijde bevinden zich enkele parkeerplaatsen voor kortparkeren. Het parkeren aan de voorzijde van het gebouw is iets aangepast ten opzichte van het voorstel in de stedenbouwkundige onderlegger. Aan de voorzijde zijn enkele terrassen voor de bewoners gesitueerd. Het voorterrein krijgt een groene inrichting met mogelijkheden voor 'verpozen' (wandel- en zitgelegenheid).

Voor de nieuwbouw is op de verbeelding behorende bij dit bestemmingsplan een bouwvlak opgenomen. De maximale bouwhoogte is op de verbeelding weergegeven en bedraagt 14 meter.

De bouw- en gebruiksregels zijn afgestemd op het schetsontwerp en het bijbehorende programma. Het toekomstig aantal wooneenheden van de zorginstelling bedraagt 56, dit is evenveel als in de huidige situatie aanwezig is.

afbeelding "i_NL.IMRO.0086.02BPCommissieweg2-0101_0012.jpg"

Figuur: Situatieschets nieuwbouw Ikenhiem (VMEZ, 30-4 2020)

afbeelding "i_NL.IMRO.0086.02BPCommissieweg2-0101_0013.jpg"

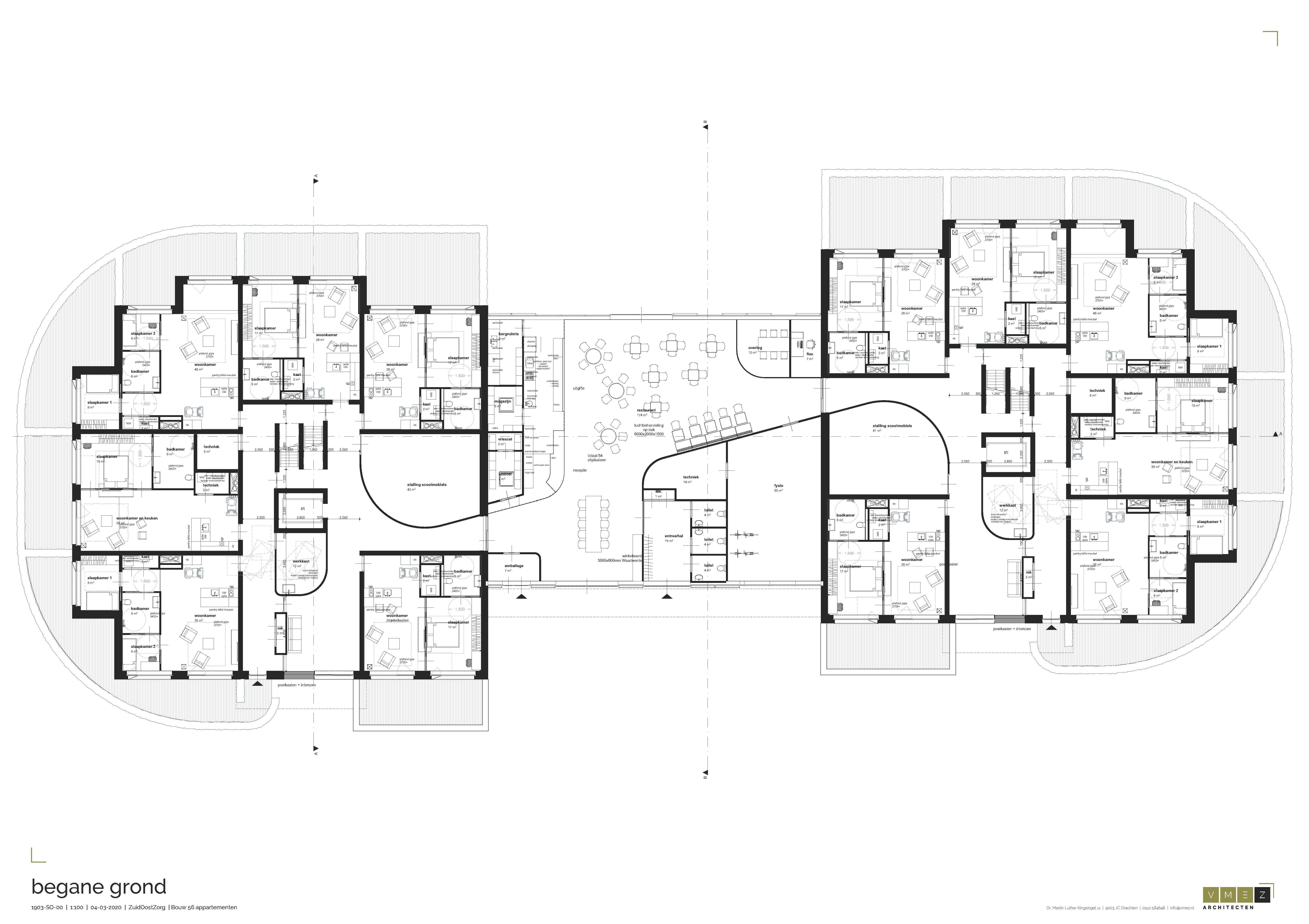
Figuur: situatietekening begane grond (VMEZ, 04-03 2020)

afbeelding "i_NL.IMRO.0086.02BPCommissieweg2-0101_0014.jpg"

Figuur: voorgevel (VMEZ, 04-03 2020)

Hoofdstuk 4 Omgevingsaspecten

4.1 Vormvrije mer-beoordeling

Beleid en Normstelling

In onderdeel C en D van de bijlage bij het Besluit m.e.r. is aangegeven welke activiteiten in het kader van het omgevingsvergunning plan-m.e.r.-plichtig, project-m.e.r.-plichtig of m.e.r.-beoordelingsplichtig zijn. Voor deze activiteiten zijn in het Besluit m.e.r. drempelwaarden opgenomen. Indien een activiteit onder de drempelwaarden blijft, dient alsnog een vormvrije m.e.r.-beoordeling uitgevoerd te worden, waarbij onderzocht dient te worden of de activiteit belangrijke nadelige gevolgen heeft voor het milieu, gelet op de omstandigheden als bedoeld in bijlage III van de EEG-richtlijn milieueffectbeoordeling. Deze omstandigheden betreffen de kenmerken van het project, de plaats van het project en de kenmerken van de potentiële (milieu)effecten.

Per 16 mei 2017 is de regelgeving voor de MER en m.e.r.-beoordeling gewijzigd met daarin een nieuwe procedure voor de vormvrije m.e.r.-beoordeling.

  • Voor de ontwerp-bestemmingsplanfase moet een m.e.r-beoordelingsbeslissing worden genomen, waarin wordt aangegeven of wel of geen MER nodig is, gelet op de kenmerken van het project, de plaats van het project en de kenmerken van de potentiële (milieu)effecten en mogelijke mitigerende maatregelen. Deze beslissing wordt als bijlage bij het bestemmingsplan opgenomen.
  • Voor elke aanvraag waarbij een vormvrije m.e.r.-beoordeling aan de orde komt moet de initiatiefnemer een aanmeldingsnotitie opstellen, waarbij ook mitigerende maatregelen mogen worden meegenomen. Het bevoegd gezag dient binnen zes weken na indienen een m.e.r.-beoordelingsbesluit af te geven. Een vormvrije m.e.r.-beoordelingsbeslissing hoeft echter niet gepubliceerd te worden.

Onderzoek

In het Besluit milieueffectrapportage is opgenomen dat de aanleg, wijziging of uitbreiding van een stedelijk ontwikkelingsproject m.e.r.-beoordelingsplichtig is in gevallen waarin de activiteit betrekking heeft op een oppervlakte van 100 hectare of meer of een aaneengesloten gebied en 2000 of meer woningen omvat (Besluit milieueffectrapportage, Bijlage onderdeel D11.2). De beoogde ontwikkeling bestaat uit de realisatie van een Multifunctionele accommodatie. De beoogde ontwikkeling blijft daarmee ruim onder de drempelwaarde. Dit betekent wel dat een zogenaamde 'vormvrije m.e.r.-beoordeling' noodzakelijk is.

Uit de vormvrije m.e.r.-beoordeling blijkt dat gelet op de kenmerken van het project, de plaats van het project en de kenmerken van de potentiële effecten geen belangrijke negatieve milieugevolgen zullen optreden. Er is dan ook geen aanleiding voor het doorlopen van een m.e.r.-procedure.

De vormvrije m.e.r. beoordeling is als bijlage 5 bij de toelichting van dit bestemmingsplan toegevoegd.

4.2 Milieuzonering

4.2.1 Toetsingskader

In het kader van een goede ruimtelijke ordening is het van belang dat bij de aanwezigheid van bedrijven in de omgeving van milieugevoelige functies zoals woningen:

  • ter plaatse van de woningen een goed woon- en leefmilieu kan worden gegarandeerd;
  • rekening wordt gehouden met de bedrijfsvoering en milieuruimte van de betreffende bedrijven.

Om in de bestemmingsregeling de belangenafweging tussen bedrijvigheid en nieuwe woningen in voldoende mate mee te nemen, wordt in dit plan gebruikgemaakt van de VNG-publicatie Bedrijven en milieuzonering (editie 2009). In deze publicatie is een lijst opgenomen waarin de meest voorkomende bedrijven en bedrijfsactiviteiten zijn gerangschikt naar mate van milieubelasting. De lijst maakt snel inzichtelijk maakt welke milieuaspecten van belang zijn en in welke milieucategorie een bedrijf ingedeeld zou kunnen worden.

Voor elke bedrijfsactiviteit is de maximale richtafstand ten opzichte van milieugevoelige functies aangegeven, op grond waarvan de categorie-indeling heeft plaatsgevonden. Naarmate de milieuhinder toeneemt, loopt de milieu-indeling op van 1 t/m 6, met bijbehorende richtafstanden. De richtafstanden gelden ten opzichte van het omgevingstype 'rustige woonwijk'. Een richtafstand kan worden beschouwd als de afstand waarbij onaanvaardbare milieu-hinder als gevolg van bedrijfsactiviteiten redelijkerwijs kan worden uitgesloten. In bepaalde gevallen kan gemotiveerd worden dat er geen sprake is van een 'rustige woonwijk', maar van een 'gemengd gebied'. Dit is bijvoorbeeld het geval bij een lint in een dorpskern waar meerdere functies naast elkaar zitten. Of bij een gebied dat langs een drukke ontsluitingsweg ligt. Bij een 'gemengd gebied' kunnen de richtafstanden met 1 afstandsstap verkleind worden. Uitzondering hierop is de richtafstand voor externe veiligheid. Deze wordt niet verkleind.

Het voordeel van het instrument is, dat het een integrale benadering geeft. Er is per bedrijf in beeld gebracht welke richtafstand aan de orde is voor de aspecten geluid, geur, stof en externe veiligheid. De milieucategorie wordt bepaald op de maatgevende (grootste) afstand.

afbeelding "i_NL.IMRO.0086.02BPCommissieweg2-0101_0015.png"

Figuur: Richtafstandentabel (bron: VNG-publicatie Bedrijven en milieuzonering (editie 2009)

4.2.2 Onderzoek en conclusie

Omgevingstype

Op grond van de VNG-publicatie 'Bedrijven en milieuzonering' kan de omgeving rond het plangebied tot het omgevingstype 'rustige woonwijk' worden gerekend. Ten nood-westen bevindt zich een pannenkoekenrestaurant (Beetsterweg 1) . De milieucategorie bedraagt 1 en de aan te houden afstand 10 meer. Deze afstand wordt ruimschoots gehaald.

Het aspect 'Milieuzonering' vormt geen belemmering voor dit bestemmingsplan.

4.3 Archeologie

4.3.1 Toetsingskader

Rijk en provincie stellen zich op het standpunt dat in het ruimtelijk beleid zorgvuldig met het archeologisch erfgoed moet worden omgegaan. Voor gebieden waar archeologische waarden voorkomen of waar reële verwachtingen bestaan dat ter plaatse archeologische waarden aanwezig zijn, dient voorafgaand aan bodemingrepen archeologisch onderzoek te worden uitgevoerd. De uitkomsten van het archeologisch onderzoek dienen vervolgens volwaardig in de belangenafweging te worden betrokken.

Doelstelling van het Verdrag van Valetta is de bescherming en het behoud van archeologische waarden. Als gevolg van dit verdrag wordt in het kader van de ruimtelijke ordening het behoud van het archeologisch erfgoed meegewogen zoals alle andere belangen die bij de voorbereiding van het plan een rol spelen.

FAMKE

De provincie heeft in dit kader de Friese Archeologische Monumentenkaart Extra (FAMKE) opgesteld. Hierop zijn archeologische adviezen voor de provincie Fryslân gegeven. Op deze kaart worden voor zowel de Steentijd - Bronstijd als de Ijzertijd - Middeleeuwen adviezen gegeven over eventueel te verrichten onderzoeken.

Voor de Ijzertijd-Middeleeuwen is voor de locatie het advies: karterend onderzoek 3. In deze gebieden kunnen zich archeologische resten bevinden uit de periode Ijzertijd - Middeleeuwen. Het gaat hier dan met name om vroeg en vol-middeleeuwse veenontginningen. Daarbij bestaat de kans dat er zich huisterpjes uit deze tijd in het plangebied bevinden. Ook de wat oudere boerderijen kunnen archeologische sporen of resten afdekken, hoewel de veengronden eromheen al afgegraven zijn. De provincie beveelt aan om bij ingrepen van meer 5. 000 m² een historisch en karterend onderzoek te verrichten, waarbij speciale aandacht moet worden besteed aan eventuele Romeinse sporen en/of vroeg-middeleeuwse ontginningen. Mochten er, als gevolg van het karterend archeologisch onderzoek, een of meerdere vindplaatsen worden aangetroffen, dan zal uit nader (waarderend) onderzoek moeten blijken hoe waardevol deze vindplaatsen zijn.

Het FAMKE Advies voor de locatie betreffende de steentijd-bronstijd is: quickscan

Van deze gebieden wordt vermoed dat eventuele aanwezige archeologische resten al ernstig verstoord zijn, maar dit is niet met zekerheid te zeggen. De provincie beveelt daarom aan om bij ingrepen van meer dan 5.000 m² een quickscan te verrichten. Een quickscan is een extensief booronderzoek waarmee duidelijk gemaakt wordt of het steentijd bodemarchief intact is. Bij een intact bodemarchief kan dan over worden gegaan op een karterend onderzoek 2 (6 boringen per hectare). Tevens dient te worden nagegaan of er zich bekende vuursteenvindplaatsen en dobben in het gebied bevinden. Deze locaties moeten dan vervolgens door middel van een archeologisch onderzoek worden gewaardeerd.

4.3.2 Onderzoek

Ten behoeve van dit bestemmingsplan heeft in april 2020 een Archeologisch Bureauonderzoek &
Inventariserend Veldonderzoek plaatsgevonden. In verband met de geplande nieuwbouw van verpleeghuis Ikenhiem is een archeologisch onderzoek uitgevoerd aan de Commissieweg te Beetsterzwaag, gemeente Opsterland, provincie Fryslân. Voor de nieuwbouw is graafwerk nodig dat een bedreiging vormt voor eventueel aanwezige archeologische waarden. Het doel van het onderzoek is om vast te stellen wat de kans is op de aanwezigheid van archeologische waarden. Het onderzoek

bestaat uit een bureauonderzoek en een veldonderzoek, verkennende fase. Bij het bureauonderzoek zijn bronnen geraadpleegd op het gebied van fysische geografie, archeologie en historische geografie. Tijdens het veldonderzoek zijn zes boringen geplaatst om de opbouw en gaafheid van de bodem te bepalen.

Uit het veldonderzoek blijkt dat de top van het pleistocene zand lokaal intact gebleven is onder een laag restveen. Het zand vertoont daar echter nauwelijks bodemvorming wat erop wijst dat het geen langdurig droge omstandigheden gekend heeft voorafgaand aan de vernatting en veenvorming. In het zuiden heeft mogelijk een zandkop gelegen die wel langere tijd droog geweest is, maar daar is de bodem diep verstoord. Door het plangebied heeft waarschijnlijk een sloot gelopen die omstreeks de achttiende eeuw is gedempt. Het onderzoek heeft geen vondsten opgeleverd die eenduidig dateren uit de

middeleeuwen of eerdere archeologische periodes.

Het plangebied lijkt tijdens de steentijd geen aantrekkelijke vestigingsplek te zijn geweest voor de mens. Mogelijk lag in het zuiden een zandkop die wel voldoende droog was voor menselijke bewoning, maar eventuele archeologische resten daarvan zullen door graafwerk verloren zijn gegaan. Van eventuele archeologische resten uit de middeleeuwen kunnen mogelijk wel diepere delen bewaard gebleven zijn. Maar het onderzoek heeft geen aanwijzingen opgeleverd voor resten uit die tijd. Daarom kan de archeologische verwachting naar beneden toe worden bijgesteld.

Aangezien eventuele archeologische resten uit de steentijd sterk zullen zijn aangetast en aangezien het onderzoek geen aanwijzingen heeft opgeleverd voor resten uit de middeleeuwen, wordt geadviseerd om geen nader archeologisch onderzoek te ondernemen en het gebied aan de Commissieweg op archeologische gronden geen beperkingen op te leggen. Wel wordt er op gewezen dat voor al het graafwerk geldt dat als archeologische grondsporen worden aangetroffen en/of vondsten worden gedaan, dat daarvan direct melding dient te worden gemaakt bij de gemeente Opsterland. Dit conform de Erfgoedwet 2015, artikel 5.10.

Het Archeologisch Bureauonderzoek & Inventariserend Veldonderzoek ( april 2020) is als bijlage 6opgenomen bij de toelichting van dit bestemmingsplan.

4.4 Cultuurhistorie

4.4.1 Toetsingskader

De regering heeft in het Besluit ruimtelijke ordening (Bro) vastgelegd dat gemeenten vanaf 1 januari 2012 in hun bestemmingsplannen rekening moeten houden met aanwezige cultuurhistorische waarden. Een bestemmingsplan moet een beschrijving bevatten van de wijze waarop er rekening is gehouden met de aanwezige cultuurhistorische waarden en in de grond aanwezige monumenten. Er is sprake van cultuurhistorische waarden wanneer er een positieve waardering van sporen, objecten, patronen en structuren zichtbaar of niet zichtbaar onderdeel uitmaken van onze leefomgeving. Gemeenten moeten aan de hand van deze beschrijving een analyse verrichten van de cultuurhistorische waarden in het bestemmingsplangebied. Hieruit moeten conclusies voortvloeien die in het bestemmingsplan terecht komen. Op deze manier wordt er waarde toegekend aan het belang van cultuurhistorie via het proces van ruimtelijke ordening.

4.4.2 Onderzoek en conclusie

De Commissieweg sluit in noordelijke richting aan op de Hoofdstraat van Beetsterzwaag. De Hoofdstraat is de belangrijkste straat van het dorp. Langs deze straat is het dorp ontstaan. Beetsterzwaag was de plek waar de belangrijkste mensen van de veencompagnieën zich vestigden. Hierdoor zijn er landgoederen en herenhuizen te vinden aan de historische route Beetsterzwaag - Hoofdstraat- Van Harinxmaweg. De rijke geschiedenis is op veel plekken terug te zien in de bijzondere bebouwing. Niet alleen de panden bepalen dit beeld. Net zo belangrijk zijn de tuinen en de openbare ruimte.

Kenmerkend voor de oude ruimtelijke structuur van Beetsterzwaag is de verdichting te midden van het lint van landgoederen. De oost-west gerichte basis is hierin is de Hoofdstraat. De Hoofdstraat, met achter aangrenzende gebieden en tuinen, vormt nu het oude Beetsterzwaag. Aan de noordkant is het Kerkepad Oost de begrenzing, aan de zuidkant ligt de grens bij de Molenlaan. In dit gebied zijn de meeste verzorgende functies geconcentreerd. De Hoofdstraat kent ook een belangrijke doorgaande verkeersfunctie. Door zijn bebouwingsbeeld, zijn verkeersfunctie en zijn winkel- en horecafunctie is de Hoofdstraat een herkenbare scheidingslijn in het dorp tussen twee grote woongebieden.

De landgoederen aan de rand van het dorp zijn eveneens kenmerkend voor de ruimtelijke structuur. Het landgoed Harinxmastate is typerend voor het oude ruimtegebruik van Beetsterzwaag. Het huis met koetshuis en omringende siertuin is het hart van het landgoed, dat zich geheel volgens de historische verkavelingsstructuur, uitstrekt vanaf de gemeentegrens in het noorden tot aan de grenzen van het Koningsdiep in het zuiden. Het eens vergelijkbare landgoed Lyndenstein is ontwikkeld tot revalidatiecentrum. Alleen cultuurhistorisch kenmerkend is hier nog het oude monumentale hoofdgebouw met voortuin en de overtuin. Deze tuinen, die horen bij de oude monumentale landhuizen in de Hoofdstraat zijn een bijzondere functie in het hart van Beetsterzwaag. De tuinen zijn in de vorige eeuw door de adel aangelegd. Zie ook paragraaf 3.1.1 Karakteristiek Beetsterzwaag.

De locatie aan de Commissieweg waar de nieuwbouw is gepland is momenteel ingericht als parkeerterrein. Er is geen sprake van de aanwezigheid van cultuurhistorische waarden op de locatie van de voorgenomen ontwikkeling. De aanwezige cultuurhistorische waarden in de directe omgeving worden vooral gevormd door de overtuin van het voormalige landgoed Lyndenstein. Deze overtuin grenst aan het plangebied en is direct ten oosten hiervan gelegen. Met de voorgenomen terreininrichting wordt de cultuurhistorische betekenis van de overtuin gerespecteerd. Dit gebeurt onder andere door de oriëntatie van de bouwvolumes op de Commissieweg, het aanhouden van de benodigde afstanden ten opzichte van de aangrenzende percelen en de 'groene inrichting' van de buitenruimte aan de achterzijde van de nieuwbouw, waardoor een natuurlijke overgang naar de overtuin wordt gecreëerd.

Het aspect cultuurhistorie wordt aldus in voldoende mate gerespecteerd en vormt geen belemmering voor de voorgestane ontwikkeling.

4.5 Bodem

Toetsingskader

Op grond van het Besluit ruimtelijke ordening (Bro) dient er in verband met de uitvoerbaarheid van een plan rekening te worden gehouden met de bodemgesteldheid in het plangebied. Bij functiewijziging dient te worden bekeken of de bodemkwaliteit voldoende is voor de beoogde functie en moet worden vastgesteld of er sprake is van een saneringsnoodzaak. In de Wet bodembescherming is bepaald dat als de bodemkwaliteit niet voldoet aan de norm voor de beoogde functie, de grond zodanig gesaneerd wordt, dat het kan worden gebruikt voor de desbetreffende functie (functiegericht saneren). Nieuwe bestemmingen worden bij voorkeur op schone grond gerealiseerd. Verdachte plekken met betrekking tot de kwaliteit van de bodem dienen in het kader van de Wet bodembescherming bij ruimtelijke plannen en projecten te worden gesignaleerd vanuit een goede ruimtelijke ordening.

Onderzoek en conclusie

Voor dit bestemmingsplan is een verkennend bodemonderzoek uitgevoerd. Het verkennend milieukundig bodemonderzoek (25 mei 2020) is als bijlage 7 opgenomen. Naar aanleiding van de resultaten van het verkennend milieukundig bodemonderzoek worden conclusies getrokken en aanbevelingen gedaan. Op basis van de vooraf gestelde hypothese is de onderzoekslocatie in eerste aanleg als milieuhygiënisch onverdacht aangemerkt. Op basis van de resultaten van het verkennend bodemonderzoek blijkt echter dat de locatie niet geheel vrij is van bodemverontreiniging. Uit de resultaten van het onderzoek blijkt dat er beïnvloeding van de bodemkwaliteit heeft plaatsgevonden. Opgemerkt wordt dat de conclusies betrekking hebben op de chemische gesteldheid van de bodem (excl. asbest). Een asbestonderzoek in grond of puin conform de NEN 5707+C2 resp. NEN 5897+C2 maakt geen onderdeel uit van de scope van onderhavig onderzoek.

Op basis van dit onderzoek dat volgens NEN-5740-A1 is uitgevoerd kan geen uitspraak worden

gedaan omtrent de aanwezigheid van asbesthoudend materiaal in de bodem of puin. In de grond zijn puinresten waargenomen. Gezien het bovenstaande wordt de locatie beschouwd als verdacht voor de aanwezigheid van asbesthoudend materiaal in de bodem. Indien een formele uitspraak over het voorkomen van asbest in de bodem gewenst is dient een asbestonderzoek uit gevoerd te worden conform de NEN 5707+C2 of NEN 5897+C2.

Het onderzoek resulteert in een aantal aanbevelingen:

  • 1. Nader onderzoek op perceel sectie B n. 2875 in verband met het voorkomen van een matig verhoogd gehalte zink (zware metalen) en sterk verhoogde gehalten koper en lood (zware metalen).
  • 2. Geadviseerd wordt om op perceel sectie B nr. 2875 een verkennend onderzoek asbest in grond volgens NEN-5707+C2 uit te voeren.
  • 3. Het noordelijk deel van de parkeerplaats is verhard met een laagje gebroken puin, asfalt en grind. Deze halfverhardingslaag (niet zijnde grond) valt buiten de scope van dit onderzoek en is derhalve niet in dit onderzoek onderzocht. Geadviseerd wordt na te gaan of er nog kwaliteitsgegevens van dit halfverhardingsmateriaal aanwezig zijn. Wanneer dit niet het geval is en er, met het oog op hergebruik, inzicht gewenst wordt in de chemische samenstelling en eventueel. hergebruiksmogelijkheden van het halfverhardingsmateriaal wordt geadviseerd een partijkeuring op basis van het Besluit Bodemkwaliteit uit te voeren.
  • 4. In dit verkennend bodemonderzoek is geen onderzoek uitgevoerd naar PFAS stoffen in de bodem. De in dit onderzoek opgenomen indicatieve toetsing aan het Besluit Bodemkwaliteit is excl. onderzoek naar PFAS-stoffen, onderzoek naar deze verbindingen is bij definitieve beoordeling van eventueel. hergebruiksmogelijkheden van eventueel. af te voeren grond alsnog nodig. Indien het noodzakelijk is dat er grond afgevoerd moet worden van de locatie zal er een melding grondverzet gedaan moeten worden via het landelijk meldpunt: www.meldpuntbodemkwaliteit.nl.

Vervolgonderzoek

Naar aanleiding van de resultaten van het verkennend milieukundig bodemonderzoek is er in september 2020 een aanvullend onderzoek naar koper en lood uitgevoerd, evenals een verkennend bodemonderzoek asbest in grond ter plaatse van het voormalige bebouwde deel. Naar aanleiding van de resultaten van het aanvullend milieukundig bodemonderzoek en verkennend onderzoek asbest in grond worden de volgende conclusies getrokken en aanbevelingen gedaan:

De in een voorgaande bodemonderzoek uit 2004 geconstateerde  verontreiniging met zware metalen is in dit onderzoek bevestigd. Er lijkt hier sprake te zijn van een dempingslaag. Vanwege de geparkeerde auto's was het bij de uitvoering niet mogelijk overal bij te kunnen. De omvang van de verontreiniging is nog niet volledig afgeperkt. Hiervoor is nog het advies voor nader onderzoek opgenomen. Dit onderzoek kan het beste worden uitgevoerd wanneer de parkeerplaats niet meer wordt gebruikt en vrij is. Op basis van het verkennend onderzoek asbest in grond  is in de bovengrond geen asbest gemeten. Het 'aanvullend milieukundig bodemonderzoek en verkennend onderzoek asbest in grond' is opgenomen als bijlage 8 bij de toelichting.

4.6 Water

Watertoets

Vanwege het grotere belang van het water in de ruimtelijke ordening, wordt van waterschappen een vroege en intensieve betrokkenheid bij het opstellen van ruimtelijke plannen verwacht. Bovendien is de watertoets een verplicht onderdeel in de bestemmingsplanprocedure geworden. In het kader van de watertoets is de ontwikkeling voorgelegd aan Wetterskip Fryslân voor een wateradvies. Via dewatertoets.nl is het plan op 5-3-2020 (dossiercode 20200305-2-22658) ingediend. Na overleg met het waterschap is het plan op 27 mei 2020 opnieuw ingediend.

Hieruit blijkt dat de normale watertoetsprocedure van toepassing is. Dit houdt in dat de aanwezige wateraspecten van invloed zijn op het plan. Daarvoor heeft het waterschap een wateradvies uitgebracht. Dit advies is opgenomen in bijlage 9. De gevolgen voor het plan zijn hierna beschreven.

Toename verharding

Door ruimtelijke ontwikkelingen kan de hoeveelheid verhard oppervlak toenemen met als gevolg een versnelde afvoer van hemelwater. Het is nodig om deze versnelde afvoer te compenseren om de waterberging in een gebied in stand te houden. Dit geldt ook voor toevoegen van oppervlakteverharding die wel past binnen het bestemmingsplan, maar waarvan de grond al meer dan vijf jaar braak ligt en waar in het verleden niet voor gecompenseerd is.

Het is verboden zonder watervergunning neerslag versneld tot afvoer te laten komen indien daarbij meer dan 200 m2 onverharde grond in stedelijk gebied en 1.500 m2 in landelijk gebied wordt bebouwd of verhard. Er geldt een vrijstelling van de vergunningsplicht wanneer wordt voldaan aan de compensatieregels genoemd in dit wateradvies. De meest voorkomende manier van compenseren is het graven van extra oppervlaktewater. Bij het graven van extra oppervlaktewater is onderstaande tabel van toepassing. Uiteraard is het toepassen van alternatieve maatregelen in het plan ook mogelijk. Afhankelijk van de maatregel kunnen andere normen gelden dan vermeld in het onderstaande tabel.

Indien er niet wordt gecompenseerd door extra oppervlaktewater te graven waarbij genoemde percentages worden gehanteerd of indien er geen overeenstemming plaatsvindt in de watertoetsprocedure over alternatieve maatregelen dan dient een watervergunning bij het

waterschap te worden gevraagd.

Gebied   Stedelijk (>200 m2)   Landelijk (>1.500 m2)  
Boezem   5%   5%  
Polder   10%   10%  
Vrij afstromend   Maatwerk mogelijk   Maatwerk mogelijk  

Toelichting tabel

  • 5% heeft alleen betrekking op de Friese boezem;
  • de algemene regels keur zijn in de onderstaande tabel verwerkt;
  • maatwerk kan bestaan uit bijvoorbeeld infiltratie of berging van het overtollig hemelwater.

Demping van oppervlaktewater

Voor het dempen van oppervlaktewater is het beleid van Wetterskip Fryslân dat dit voor 100% gecompenseerd moet worden in hetzelfde peilgebied. Voor de demping is een watervergunning nodig.

Afvalwater en regenwatersysteem

Het uitgangspunt is om regenwater en rioolwater zoveel mogelijk gescheiden af te voeren. In dit geval wordt afvalwater op het bestaande rioleringssysteem afgevoerd. Schoon hemelwater vanaf de verhardingen wordt afgevoerd op de watergangen in en nabij het plangebied.

Waterkwaliteit

De bouwwijze en onderhoudstechniek moeten emissievrij zijn om verontreiniging van het water te voorkomen. In dit geval zal gebruik worden gemaakt van milieuvriendelijke (bouw)materialen. Indien zink wordt gebruikt op de gebouwen dient dit te worden voorzien van een coating om uitloging in het oppervlaktewater te voorkomen.

Wateraspecten in relatie tot planvoornemen

De totale verharding in de huidige situatie bedraagt: 5.327 m2 De totale verharding in de nieuwe situatie bedraagt 3.771 m2 De verharding neemt dus met 1.556 m2 af. De sloot ten noorden van het bestaande gebouw zal wellicht worden verlegd ten behoeve van parkeren. Of er wordt zo mogelijk een duiker/buis aangelegd. Dit wordt nog nader bekeken.

Voor dit plan geldt dat er sprake is van een significante afname van verharding. Compensatie als gevolg van toename verharding is dus niet aan de orde.

Afronding watertoetsprocedure

In de besluitvormingsfase, ten tijde van het toesturen van het voorontwerp bestemmingsplan of ontwerp omgevingsvergunning, controleert Wetterskip Fryslân of de waterbelangen voldoende zijn meegenomen en geborgd in het ruimtelijke plan of besluit.

afbeelding "i_NL.IMRO.0086.02BPCommissieweg2-0101_0016.png"

 Figuur: Verharding, huidige situatie (VMEZ, 08-05 2020)

afbeelding "i_NL.IMRO.0086.02BPCommissieweg2-0101_0017.png"

Figuur: Verharding, nieuwe situatie (VMEZ, 08-05 2020)

4.7 Verkeer en parkeren

Toetsingskader

Op het gebied van verkeer en vervoer bestaat geen specifieke wetgeving die relevant is voor de voorgenomen activiteit. Wel dient in het kader van het ruimtelijk plan dat de activiteit mogelijk maakt, te worden onderbouwd dat het geheel voldoet aan een goede ruimtelijke ordening. Dit houdt onder meer in dat er voldoende parkeergelegenheid aanwezig dient te zijn en de eventuele verkeerstoename niet leidt tot knelpunten in de verkeersafwikkeling.

Voor het bepalen van de parkeerbehoefte en de verkeersgeneratie worden kencijfers uit CROW publicatie 381 'Toekomstbestendig Parkeren' (2018) gebruikt. Hierbij is uitgegaan van een niet-stedelijke omgeving, rest bebouwde kom. Er wordt uitgegaan van het gemiddelde kengetal binnen de bandbreedte. De parkeerbehoefte wordt bepaald aan de hand van de gemeentelijke parkeernormen (GVVP 2010 gemeente Opsterland), waarbij de parkeernorm voor gebiedstype 'overig' wordt gehanteerd.

Onderzoek

Ontsluiting

Het plangebied wordt ontsloten op de Commissieweg. Dit betreft een erftoegangsweg waar een maximum snelheid van 30 km/uur geldt. In noordelijke richting sluit de weg aan op de Beetsterweg, die in oostelijke richting het centrum van Beetsterzwaag bereikbaar maakt. In westelijke richting leidt de Beetsterweg naar een op- en afrit van de Rijksweg A7. Vanaf het plangebied kan in zuidelijke richting via de Commissieweg en It Merkelân, de Gerdyksterwei worden bereikt.

Op de Commissieweg en Beetsterweg deelt fietsverkeer de hoofdrijbaan met het gemotoriseerde verkeer. Langs de Gerdyksterwei ligt een vrijliggend fietspad. Ter hoogte van het plangebied ligt langs de Commissieweg een voetpad. De dichtstbijzijnde bushalte (Beetsterzwaag, It Merkelân) ligt op minder dan 200 meter loopafstand van het plangebied. Hier halteert bus 20 in de richtingen Leeuwarden (via Drachten) en Heerenveen (via Gorredijk).

Parkeerbehoefte

De toekomstige parkeerbehoefte van het plangebied wordt bepaald aan de hand van de gemeentelijke parkeernormen (GVVP 2010 gemeente Opsterland). Tabel 4.1 toont de toekomstige parkeerbehoefte van de zorginstelling. Het toekomstig aantal wooneenheden van de zorginstelling bedraagt 56, dit is evenveel als in de huidige situatie aanwezig is. De bewoners zijn van een dermate niveau dat ze geen beschikking hebben over een auto. Het aantal te realiseren parkeerplaatsen is dus bedoeld voor werknemers en bezoekers van de zorginstelling. De berekende parkeerbehoefte van 28 parkeerplaatsen wordt op eigen terrein opgevangen. Stallingsplaatsen voor fietsen worden eveneens op eigen terrein gerealiseerd.

Het parkeren is aan weerszijde van het gebouw voorzien. Aan de voorzijde bevinden zich enkele parkeerplaatsen voor kortparkeren. Zie ook de figuur die is opgenomen in paragraaf 3.2.2 (Situatieschets nieuwbouw Ikenhiem).

Tabel 4.1 Parkeerbehoefte

Functie   Aantal   Parkeernorm   Parkeerbehoefte  
Verpleeg-/verzorgingstehuis   56 wooneenheden   0,5 per wooneenheid   28 parkeerplaatsen  

Verkeersgeneratie en –afwikkeling

In de huidige situatie genereert de zorginstelling reeds verkeer. Omdat het aantal wooneenheden niet toeneemt ten opzichte van de huidige situatie, wordt er ten behoeve van de ontwikkeling geen toename van het aantal verkeersbewegingen verwacht.

Conclusie

Het plangebied is goed bereikbaar voor de verschillende vervoerswijzen. De parkeerbehoefte van de zorginstelling zal op eigen terrein worden opgevangen. Met de voorgenomen ontwikkeling blijft het aantal verkeersbewegingen van en naar het plangebied gelijk, er worden dan ook geen knelpunten met betrekking tot de afwikkeling verwacht. De aspecten verkeer en parkeren staan de ontwikkeling daarom niet in de weg.

4.8 Geluid

4.8.1 Wegverkeerslawaai

Toetsingskader

Op grond van de Wet geluidhinder geldt rond wegen met een maximumsnelheid hoger dan 30 km/uur, spoorwegen en inrichtingen die 'in belangrijke mate geluidhinder veroorzaken', een geluidzone. Bij ontwikkeling van nieuwe geluidsgevoelige objecten binnen deze geluidzones moet akoestisch onderzoek worden uitgevoerd om aan te tonen dat de ontwikkeling voldoet aan de voorkeursgrenswaarden die in de wet zijn vastgelegd.

Indien niet aan de voorkeursgrenswaarde kan worden voldaan, kan het bevoegd gezag - in de meeste gevallen de gemeente - hogere grenswaarden vaststellen. Hiervoor geldt een bepaald maximum, de uiterste grenswaarde genoemd. Bij de vaststelling van hogere grenswaarden moet worden afgewogen of bronmaatregelen of maatregelen in de overdrachtssfeer kunnen worden getroffen.

Onderzoek en conclusies

De ontwikkeling van zorgwoningen wordt gerealiseerd aan de Commissieweg. Voor deze weg geldt een 30-kilometer/uur regime. Dit houdt in dat er vanwege de Wet geluidhinder voor wegverkeerslawaai geen zoneplicht aanwezig is en daarvoor geen bijbehorend onderzoek uitgevoerd hoeft te worden. Daarnaast ligt het plangebied binnen de wettelijke zone (Wet geluidhinder, Wgh) van de Gerdyksterwei en deels de Beetsterweg (wegen met een maximumsnelheid van 50 km/uur of meer). Voor het milieu- en omgevingsaspect geluid is daarom in het kader van de Wgh een akoestisch onderzoek nodig naar wegverkeergeluid.

Het doel van het onderzoek 'Akoestisch onderzoek wegverkeerslawaai' (28-04 2020) is om na te gaan in hoeverre de nieuwe woningen kunnen worden gerealiseerd binnen de randvoorwaarden van de Wet geluidhinder.

De Wet geluidhinder is van toepassing bij o.a. het realiseren van nieuwe woningen en andere

geluidsgevoelige gebouwen binnen de zone van een weg. Ikenhiem is een zorginstelling en op basis van

artikel 1.2 van het Besluit geluidhinder (Bgh) valt de locatie als “ander geluidsgevoelige gebouw” aan te duiden en is de Wgh van toepassing. Het plangebied ligt binnen de zone van de Gerdyksterwei en binnen de bebouwde kom van Beetsterzwaag; er is sprake is van een binnenstedelijke situatie. De maximale grenswaarde bedraagt Lden = 63 dB.

Wegen met een maximumsnelheid van 30 km/u of lager zijn op basis van de Wgh niet gezoneerd.

Akoestisch onderzoek zou achterwege kunnen blijven. Echter dient op basis van jurisprudentie in het kader van een goede ruimtelijke ordening inzichtelijk te worden gemaakt of er sprake is van een aanvaardbaar akoestisch klimaat. Indien dit niet het geval is, dient te worden onderbouwd of maatregelen ter beheersing van de geluidbelasting aan de gevels noodzakelijk, mogelijk en/of doelmatig zijn. Ter onderbouwing van de aanvaardbaarheid van de geluidbelasting wordt bij gebrek aan wettelijke normen aangesloten bij de benaderingswijze die de Wgh hanteert voor gezoneerde wegen. Vanuit dat oogpunt worden de voorkeursgrenswaarde en de maximale ontheffingswaarde als referentiekader gehanteerd. De voorkeursgrenswaarde geldt hierbij als richtwaarde en de maximale ontheffingswaarde als maximaal aanvaardbare waarde.

Uit het onderzoek blijkt dat de geluidbelasting vanwege de Gerdyksterwei op de nieuwe zorglocatie Ikenhiem niet hoger is dan de voorkeursgrenswaarde van Lden = 48 dB. De realisatie is mogelijk binnen de randvoorwaarden van de Wet geluidhinder en er zijn geen hogere waarden nodig.

De geluidbelasting vanwege de Commissieweg ligt eveneens onder de voorkeursgrenswaarde en is

ondergeschikt.

Omdat de voorkeursgrenswaarde van de Wet geluidhinder niet wordt overschreden, is een onderzoek naar geluidreducerende maatregelen niet aan de orde. Wanneer op basis van de cumulatieve geluidbelasting (exclusief aftrek) vanwege wegverkeer (Gerdyksterwei en Commissieweg) de gevelgeluidweringseis wordt bepaald, dient op basis van het Bouwbesluit 2012 de karakteristieke gevelgeluidwering 21 dB(A) te bedragen.

Het 'Akoestisch onderzoek wegverkeerslawaai' is als bijlage 10 bij de toelichting van dit bestemmingsplan opgenomen.

4.9 Luchtkwaliteit

Toetsingskader

In het kader van een goede ruimtelijke ordening wordt bij het opstellen van een ruimtelijk plan uit het oogpunt van de bescherming van de gezondheid van de mens rekening gehouden met de luchtkwaliteit. Het toetsingskader voor luchtkwaliteit wordt gevormd door hoofdstuk 5, titel 5.2 van de Wet milieubeheer. Dit onderdeel van de Wet milieubeheer (Wm) bevat grenswaarden voor zwaveldioxide, stikstofdioxide en stikstofoxiden, fijnstof, lood, koolmonoxide en benzeen. Hierbij zijn in de ruimtelijke ordeningspraktijk langs wegen vooral de grenswaarden voor stikstofdioxide (jaargemiddelde) en fijnstof (jaar- en daggemiddelde) van belang. De grenswaarden van de laatstgenoemde stoffen zijn in tabel 4.1 weergegeven.

Tabel: Grenswaarden maatgevende stoffen Wm

Stof   Toetsing van   Grenswaarde  
stikstofdioxide (NO2)   jaargemiddelde concentratie   40 µg/m³  
fijn stof (PM10)   jaargemiddelde concentratie   40 µg/m³  
  24-uurgemiddelde concentratie   max. 35 keer p.j. meer dan 50 µg / m³  
fijn stof (PM2,5)   jaargemiddelde concentratie   25 µg /m³  

Op grond van artikel 5.16 van de Wm kunnen bestuursorganen bevoegdheden die gevolgen kunnen hebben voor de luchtkwaliteit onder andere uitoefenen indien de bevoegdheden/ontwikkelingen niet leiden tot een overschrijding van de grenswaarden of de bevoegdheden/ontwikkelingen niet in betekenende mate bijdragen aan de concentratie in de buitenlucht.

Besluit niet in betekenende mate

In dit Besluit niet in betekenende mate is bepaald in welke gevallen een plan vanwege de gevolgen voor de luchtkwaliteit niet aan de grenswaarden hoeft te worden getoetst. Hierbij worden 2 situaties onderscheiden:

  • een plan heeft een effect van minder dan 3% van de jaargemiddelde grenswaarde NO2 en PM10 (= 1,2 µg/m³);
  • een plan valt in een categorie die is vrijgesteld aan toetsing aan de grenswaarden; deze categorieën betreffen onder andere woningbouw met niet meer dan 1.500 woningen bij één ontsluitingsweg en 3.000 woningen bij twee ontsluitingswegen, kantoorlocaties met een bruto vloeroppervlak van niet meer dan 100.000 m2 bij één ontsluitingsweg en 200.000 m2 bij twee ontsluitingswegen.

Onderzoek en conclusie

Het aspect luchtkwaliteit kan bepalend zijn voor de mogelijkheden van nieuwbouw in het plangebied. Door middel van dit bestemmingsplan worden nieuwe functies aan het plangebied toegevoegd. De bestaande locatie van Ikenhiem wordt op termijn echter afgebroken. De totale verkeersstroom zal daardoor praktisch gelijk blijven.

Voor kleinere ruimtelijke en verkeersplannen die effect kunnen hebben op de luchtkwaliteit moet worden bepaald of een plan "niet in betekenende mate" (NIBM) bijdraagt aan de luchtkwaliteit. Dit kan worden bepaald door middel van gegevens over het extra aantal voertuigbewegingen en het aandeel vrachtverkeer.

De voorgestane ontwikkeling voorziet in de nieuwbouw van een verpleegtehuis aan de Commissieweg. De bestaande voorziening is aan dezelfde weg gelegen en zal te zijner tijd worden afgebroken, Het aantal wooneenheden blijft in de nieuwe situatie gelijk. Als gevolg van de voorgestane ontwikkeling is er geen aanleiding te veronderstellen dat de intensiteit van het wegverkeer op de Commissieweg zal toenemen. Er is geen nader onderzoek nodig.

Het aspect luchtkwaliteit staat de ontwikkeling niet in de weg.

4.10 Ecologie

Bij ruimtelijke ontwikkelingen moet rekening gehouden worden met de natuurwaarden van de omgeving en met beschermde plant- en diersoorten. Deze zijn geregeld in de nieuwe Wet natuurbescherming (Wnb). Met de Wnb zijn alle bepalingen met betrekking tot de bescherming van natuurgebieden en dier- en plantensoorten samengebracht in één wet. De Wnb implementeert diverse Europees rechtelijke regelgeving, zoals de Vogelrichtlijn en de Habitatrichtlijn in de Nederlandse wetgeving.

4.10.1 Gebiedsbescherming

In Nederland zijn via de Wet Natuurbescherming de Natura 2000-gebieden beschermd. Als ontwikkelingen (mogelijk) leiden tot aantasting van de natuurwaarden binnen deze gebieden, moet een vergunning worden aangevraagd. Daarnaast moet rekening worden gehouden met het beleid ten aanzien van de Natuurnetwerk Nederland (NNN, voorheen Ecologisch Hoofdstructuur). Voor ontwikkelingen binnen het NNN geldt het 'nee, tenzij-principe'. Het beleid voor het NNN is opgenomen in de provinciale verordening.

4.10.2 Soortenbescherming

De Wnb bevat onder andere verbodsbepalingen ten aanzien van het opzettelijk vernielen of beschadigen van nesten, eieren en rustplaatsen van vogels als bedoeld in artikel 1 van de Vogelrichtlijn. Gedeputeerde Staten (hierna: GS) kunnen hiervan ontheffing verlenen en bij verordening kunnen Provinciale Staten (hierna: PS) vrijstelling verlenen van dit verbod. De voorwaarden waaraan voldaan moet worden om ontheffing of vrijstelling te kunnen verlenen zijn opgenomen in de Wnb en vloeien direct voort uit de Vogelrichtlijn. Verder is het verboden in het wild levende dieren van soorten, genoemd in bijlage IV, onderdeel a, bij de Habitatrichtlijn, bijlage II bij het Verdrag van Bern of bijlage I bij het Verdrag van Bonn, in hun natuurlijk verspreidingsgebied opzettelijk te doden of te vangen of te verstoren. GS kunnen hiervan ontheffing verlenen en bij verordening kunnen PS vrijstelling verlenen van dit verbod. De gronden voor verlening van ontheffing of vrijstelling zijn opgenomen in de Wnb en vloeien direct voort uit de Habitatrichtlijn.


Ten slotte is een verbodsbepaling opgenomen voor overige soorten. Deze soorten zijn opgenomen in de bijlage onder de onderdelen A en B bij de Wnb. De provincie kan ontheffing verlenen van deze verboden. Verder kan bij provinciale verordening vrijstelling worden verleend van de verboden. De noodzaak tot ontheffing of vrijstelling kan hierbij ook verband houden met handelingen in het kader van de ruimtelijke inrichting of ontwikkeling van gebieden.

4.10.3 Onderzoek

Ruimtelijke plannen dienen te worden beoordeeld op uitvoerbaarheid, onder meer in relatie tot de natuurwetgeving. De aanwezigheid van beschermde planten- en diersoorten vormt een te onderzoeken aspect omdat met de plannen effecten kunnen ontstaan op soorten die beschermd zijn via de Wet natuurbescherming. In verband met de sloop van de bestaande bebouwing en de kap van enkele bomen is een ecologisch onderzoek nodig naar de aanwezigheid van beschermde plant – en diersoorten. Zo dient te worden onderzocht of als gevolg van de uitvoering van het plan sprake is van effecten op wettelijk beschermde soorten flora en fauna en/of natuurgebieden (Natura 2000), alsook in het kader van houtopstanden. Om hierin inzicht te krijgen is een ecologische quickscan uitgevoerd (november 2019). Bij dit onderzoek is een inschatting gemaakt van de (mogelijk) binnen de invloedssfeer van het project aanwezige beschermde natuurwaarden en de effecten van de voorgenomen plannen op deze waarden.

De Quickscan Wet natuurbescherming is als bijlage 11 bij de toelichting van dit bestemmingsplan opgenomen.

Stikstofgevoeligheid

Het plangebied ligt hemelsbreed respectievelijk op circa 600 m, 4.8 km, 8.1 km en 10,1 km afstand van het Natura2000 gebieden Van Oordt's Mersken, Wijnjeterper Schar, Alde Feanen en Deelen. Echter, vanwege de aard van de werkzaamheden (sloop bestaande zorginstelling en realisatie nieuwe zorginstelling) verwachten wij geen significante negatieve effecten van extra stikstofuitstoot op (stikstof)gevoelige soorten en habitattypen zoals zwakgebufferde vennen, droge heide, bruine kiekendief en purperreiger waarvoor deze gebieden respectievelijk zijn aangewezen.

Conclusies en aanbevelingen

De quick scan resulteert in de volgende conclusies en aanbevelingen:

  • 1. Algemene broedvogels

Binnen de invloedssfeer van de werkzaamheden kunnen vogels tot broeden komen waarvan de nesten alleen tijdens de broedtijd beschermd zijn. geadviseerd wordt daarom om de werkzaamheden buiten het broedseizoen uit te voeren. Voor het broedseizoen wordt over het algemeen de periode van 15 maart-15 juli aangehouden. Afhankelijk van de soort en klimatologische omstandigheden kunnen soorten echter eerder of later in het jaar tot broeden komen. Wat van belang is, is of er sprake is van een broedgeval. Zo ja, dan is deze altijd beschermd. Eventueel kan voorafgaand aan de werkzaamheden een broedvogelcheck worden uitgevoerd, zodat in delen van het plangebied waar geen verstoring op kan treden reeds tijdens het broedseizoen kan worden gewerkt.

  • 2. Vleermuizen (verblijfplaatsen)

De aanwezigheid van verblijfplaatsen van vleermuizen in de bestaande zorginstelling en negen boomholten verspreidt over het plangebied. In het geval van de zorginstelling wordt nader onderzoek geadviseerd. In het geval van de boomholten wordt geadviseerd de kap van de bomen welke over boomholte(n) beschikken te voorkomen. Wanneer dit niet mogelijk is, wordt nader onderzoek geadviseerd. In het geval van de bestaande vleermuistoren wordt geadviseerd werkzaamheden hieraan te voorkomen. Werkzaamheden kunnen verstorende (negatieve) effecten uitoefenen op eventuele vleermuizen. Wanneer dit niet voorkomen kan worden, wordt geadviseerd om nader onderzoek uit te voeren naar de aanwezigheid van verblijfplaatsen van vleermuizen in de vleermuistoren. In aanvulling op deze aanbeveling kan worden aangegeven dat de vleermuistoren gehandhaafd blijft en dat bij de voorgenomen activiteiten hier rekening mee wordt gehouden.

  • 3. Zorgplicht

Er kunnen enkele meer algemene soorten voorkomen in het plangebied waarvoor een vrijstelling geldt in geval van schade aan deze soorten (bv huisspitsmuis). Op deze soorten is wel de zorgplicht van toepassing. Deze kan tot uiting worden gebracht door zo te werken dat dieren de kans krijgen om te vluchten naar habitat buiten de invloedsfeer van de werkzaamheden of dieren (zoals vrijgestelde amfibieën) naar een dergelijke habitat te verplaatsen.

Overzicht vervolgstappen

Het planvoornemen kan zonder bezwaren doorgang vinden binnen de kaders van de vigerende natuurwetgeving, mits aan de volgende voorwaarden wordt voldaan:

  • Broedvogels: Werken buiten het broedseizoen (grofweg 15 maart-15 juli). Is dit niet mogelijk? Dan voor aanvang werkzaamheden broedvogelcheck uit laten voeren.
  • Vleermuizen: Nader onderzoek zorginstelling. Tevens de kap van bomen met boomholte(n) voorkomen. Is dit niet mogelijk dan dient nader onderzoek te worden uitgezet. Tevens werkzaamheden aan en rondom vleermuistoren voorkomen.
  • Licht beschermde en vrijgestelde soorten: Naleven van de zorgplicht.
4.10.4 Stikstofdepositie

Naar aanleiding van de uitspraak van de Afdeling Bestuursrechtspraak van de Raad van State van 31 mei 2019 met betrekking tot het Programma Aanpak Stikstof wordt bij vrijwel ieder plan stilgestaan bij de mogelijke stikstofemissie en het effect daarvan op Natura 2000-gebieden.

Teneinde na te gaan of de uitvoering van het plan mogelijk is, gelet op het aspect stikstofemissie en -depositie, is vanwege het gebruik van diesel aangedreven materiaal tijdens de bouwfase een berekening uitgevoerd. Voor wat betreft de exploitatiefase geldt dat de nieuwe huisvesting geen gasgestookte installaties krijgt en er in de berekening uitsluitend rekening is gehouden met verkeersbewegingen.

Uit de berekening blijkt dat op geen enkel Natura-2000 of hexagoon sprake is van een bijdrage hoger dan 0,00 mol/ha/jaar. Voor wat betreft stikstofdepositie is er geen significant effect en daarmee geen vergunningplicht in het kader van de Wnb. Aangenomen is dat globaal gezien de sloop-/bouwfase effectief een jaar doorlooptijd heeft en dat daarna de exploitatiefase intreedt.

De 'Berekening stikstofemissie en-depositie' (d.d. 29 april 2020) is als bijlage 12 bij de toelichting van dit bestemmingsplan opgenomen.

4.11 Kabels en leidingen

In het plangebied zijn geen kabels en leidingen aanwezig die een planologische bescherming nodig hebben.

4.12 Externe veiligheid

Toetsingskader

Bij ruimtelijke plannen dient ten aanzien van externe veiligheid naar verschillende aspecten te worden gekeken, namelijk:

  • bedrijven waar activiteiten plaatsvinden die gevolgen hebben voor de externe veiligheid;
  • vervoer van gevaarlijke stoffen over wegen, spoor, water of door buisleidingen.

Voor zowel bedrijvigheid als vervoer van gevaarlijke stoffen zijn twee aspecten van belang, te weten het plaatsgebonden risico (PR) en het groepsrisico (GR). Het PR is de kans per jaar dat een persoon dodelijk wordt getroffen door een ongeval, indien hij zich onafgebroken (dat wil zeggen 24 uur per dag gedurende het hele jaar) en onbeschermd op een bepaalde plaats zou bevinden. Het PR wordt weergegeven met risicocontouren rondom een inrichting dan wel infrastructuur. Het GR drukt de kans per jaar uit dat een groep van minimaal een bepaalde omvang overlijdt als direct gevolg van een ongeval waarbij gevaarlijke stoffen betrokken zijn. De norm voor het GR is een oriëntatiewaarde. Het bevoegd gezag heeft een verantwoordingsplicht als het GR toeneemt en/of de oriëntatiewaarde overschrijdt.

Onderzoek en conclusie

Om te bepalen of in en in de nabijheid van het plangebied risicovolle objecten aanwezig zijn die het plan kunnen belemmeren, is de professionele risicokaart geraadpleegd. Hieruit blijkt dat in de directe nabijheid van het plangebied geen risicovolle functies/installaties aanwezig zijn. Ook vindt er in de directe omgeving geen transport plaats van gevaarlijke stoffen via het spoor, de weg, het water of door buisleidingen. Het aspect externe veiligheid vormt geen belemmering voor de beoogde ontwikkeling.

4.13 Duurzaam bouwen

Bij de bouw van het verpleeghuis Ikenhiem zijn de eisen ten aanzien van duurzaamheid die voortvloeien uit het Bouwbesluit 2018 leidend. De vervangende nieuwbouw in het plangebied moet voldoen aan de meest recente energieprestatienormen. Bij de verdere ontwikkeling van Ikenhiem wordt hier rekening mee gehouden.

De mogelijkheid om een mos/sedumdak ter hoogte van het restaurant te realiseren wordt nader onderzocht. Ook de toepassing van zonne-energie zal nader verkend worden, evenals de mogelijkheid om het nieuwe Ikenhiem te koppelen aan de bestaande nabijgelegen houtstook voorziening aan de Beetsterweg. Het slopen van het verouderde pand aan de Commissieweg 5 en de vervanging door een nieuw gebouw aan de Commissieweg 3 heeft zo ie zo een gunstig effect qua energieaspecten.

Hoofdstuk 5 Planbeschrijving

5.1 Algemeen

In voorgaande hoofdstukken zijn de uitgangspunten voor de ruimtelijke situatie in het

plangebied aangegeven. Deze uitgangspunten zijn getoetst aan de milieu- en omgevingsaspecten en het beleid. In dit hoofdstuk worden de bestemmingen en de bijbehorende regels beschreven.

Het bestemmingsplan regelt de gebruiks- en bouwregels van de gronden in het plangebied. De juridische regeling is vervat in een verbeelding en bijbehorende regels. Op de verbeelding zijn de verschillende bestemmingen vastgelegd, in de regels (per bestemming) de bouw- en gebruiksmogelijkheden. Het Besluit ruimtelijke ordening (Bro) bepaalt dat een bestemmingsplan vergezeld gaat van een toelichting. Deze toelichting heeft echter geen juridische status, maar is wel belangrijk als het gaat om de onderbouwing van hetgeen in het bestemmingsplan is geregeld.

5.2 Toelichting op de bestemmingen

5.2.1 Maatschappelijk

Doel

Het hoofddoel van de bestemming is het planologisch mogelijk maken van de beoogde (bouw)plannen in het plangebied. De gemeentelijke systematiek voor nieuwe bestemmingsplannen vormen hiervoor het vertrekpunt. Omdat het bestemmingsplan een concreet inrichtingsplan mogelijk maakt, zijn de bouwmogelijkheden hierop afgestemd. Wel moet het bestemmingsplan enige flexibiliteit bieden voor toekomstige ontwikkelingen en voor eventuele toekomstige aanpassingen op de eisen en de wensen.

Mogelijkheden voor functies

De mogelijke functies binnen de bestemming 'Maatschappelijk' zijn omschreven in de bestemmingsomschrijving. De gronden worden bestemd voor maatschappelijke voorziening en een bijzondere woonvorm. In ondergeschikte mate zijn horecafuncties, detailhandel, dienstverlening en ambachtelijke bedrijvigheid mogelijk. Deze zijn van belang voor de dagbesteding, die een belangrijk onderdeel vormen van de te leveren zorg. Daarnaast zijn (ondergeschikt) andere functies mogelijk die van belang zijn voor de aankleding van de locatie en het openbare gebied, bijvoorbeeld groenvoorzieningen, waterpartijen en wegen en paden. Deze dragen bij aan een passende, veilige en uitnodigende inrichting van het terrein.

Mogelijkheden voor bouwen

Voor de nieuwbouw is op de verbeelding van het plan een bouwvlak opgenomen. De maximale bouwhoogte is op de verbeelding weergegeven en bedraagt 14 meter.

Mogelijkheden voor afwijkingen en wijzigingen

In de bestemming zijn afwijkingsregels opgenomen, waardoor (beperkte) mogelijkheden ontstaan om met een omgevingsvergunning af te wijken van de bouwregels. Een afwijking van bouwregels is mogelijk wanneer een nieuwbouwplan bijvoorbeeld qua maatvoering op kleine schaal afwijkt van de toegestane maatvoering. Op basis hiervan kan gedeeltelijk buiten het bouwvlak gebouwd worden. Voor het verkrijgen van een omgevingsvergunning (voor afwijking van het bestemmingsplan) wordt een aparte procedure doorlopen. De omgevingsvergunning wordt alleen dan verleend, wanneer voldaan kan worden aan de in de regels opgenomen voorwaarden. Ook zijn er in de regels enkele algemene afwijkingsregels opgenomen waarmee de bouwmogelijkheden kunnen worden vergroot.

Hoofdstuk 6 Uitvoerbaarheid

Wettelijk bestaat de verplichting om inzicht te geven in de uitvoerbaarheid van een bestemmingsplan. In dat verband wordt een onderscheid gemaakt tussen de maatschappelijke en de economische uitvoerbaarheid.

6.1 Maatschappelijke uitvoerbaarheid

Ruimtelijke ordening is voor een groot deel een belangenafweging. Uit deze belangenafweging blijkt de maatschappelijke uitvoerbaarheid. Om dit aan te tonen doorloopt het bestemmingsplan de in de wet vastgelegde bestemmingsplanprocedure. Tijdens deze procedure zijn er verschillende momenten waarop burgers en belanghebbenden hun zienswijze op het plan kenbaar kunnen maken. Omdat de gemeente participatie van burgers en belangenorganisaties belangrijk vindt biedt de gemeente deze partijen de mogelijkheid reacties op het voorontwerpbestemmingsplan kenbaar te maken. Ook wordt het plan opgestuurd naar het bestuur van Wetterskip Fryslân en naar de provincie. De resultaten van overleg en inspraak worden verwerkt in het ontwerpbestemmingsplan.

Het ontwerpbestemmingsplan wordt vervolgens zes weken ter inzage gelegd. In deze periode kan eenieder zijn zienswijze kenbaar maken. Indien noodzakelijk wordt het bestemmingsplan aangepast aan de zienswijzen. Vervolgens wordt het bestemmingsplan al dan niet gewijzigd vastgesteld. Na de vaststelling wordt het bestemmingsplan nogmaals zes weken ter inzage gelegd. Tijdens deze periode bestaat de mogelijkheid tot het indienen van beroep bij de Raad van State.

6.2 Economische uitvoerbaarheid

Voor de uitvoerbaarheid van dit bestemmingsplan is het van belang te weten of het bestemmingsplan economisch uitvoerbaar is. De economische uitvoerbaarheid wordt enerzijds bepaald door de exploitatie van het plan (financiële haalbaarheid) en anderzijds door de manier van kostenverhaal van de gemeente (grondexploitatie). Onder "kostenverhaal"wordt verstaan het verrekenen van zogenaamde grondkosten, dat wil zeggen, de kosten van de aanleg van voorzieningen van openbaar nut (zoals straten, riolering , groen, parkeergelegenheid en waterpartijen met een openbare functie) binnen een bepaald ruimtelijk plan.

6.2.1 Financiële haalbaarheid

In het plangebied wordt nieuwbouw mogelijk gemaakt. De financiering voor het plan is in handen van ZuidOostZorg, een zorginstelling in het zuidoosten van Fryslân. ZuidOostZorg heeft hiervoor de benodigde financiën beschikbaar. Dit geldt ook voor de kosten voor het opstellen van het bestemmingsplan. Dit bestemmingsplan wordt dan ook economisch uitvoerbaar geacht.

6.2.2 Grondexploitatie

Door middel van de grondexploitatieregeling in de Wro en het Bro moet de gemeente verplicht de door haar gemaakte kosten verhalen. Daarnaast heeft de gemeente sturingsmogelijkheden, doordat zij in het geval van grondexploitatie door derden diverse eisen en regels kan stellen. In beginsel is het vaststellen van een exploitatieplan daarvoor verplicht gesteld. Van deze verplichting kan worden afgeweken wanneer het kostenverhaal anderszins verzekerd is.

De vaststelling van een exploitatieplan is bij dit bestemmingsplan in principe verplicht. Het bestemmingsplan maakt immers de bouw van een hoofdgebouw mogelijk, waarmee sprake is van een 'bouwplan' zoals genoemd in het Besluit ruimtelijk ordening. De grondexploitatieregeling uit de Wet ruimtelijke ordening en het Besluit ruimtelijke ordening is daarmee van toepassing.

Voor dit bestemmingsplan wordt hierop een uitzondering gemaakt (bagatelregeling). Met de vaststelling van het bestemmingsplan besluit de gemeenteraad af te zien van het verhalen van vrijwel alle niet fysieke kosten in het kader van de grondexploitatieregeling. Er worden geen andere kosten dan eventuele planschade en de leges verhaald. Dit ligt ook voor de hand omdat er ook geen andere kosten zijn, omdat alle voorzieningen door de initiatiefnemer worden aangelegd en deze de kosten hiervoor draagt.

Tussen de initiatiefnemer van de ontwikkeling en de gemeente wordt een anterieure overeenkomst opgemaakt en ondertekend. Onderdeel van deze overeenkomst vormt een planschadeverhaalsovereenkomst. Hierin wordt vastgelegd dat eventuele aanspraken voor rekening van de initiatiefnemers zijn. In de anterieure overeenkomst wordt ook vastgelegd, dat een eventuele waardevermindering van het perceel Commissieweg 2 voor rekening van de initiatiefnemer is. Het vaststellen van een grondexploitatieplan is daarom ook voor dit onderdeel van het planvoornemen niet noodzakelijk.